THE SUFFOCATING AND PITIFUL SECOND WORST CLASS SIZE OF MONONGALIA COUNTY SCHOOLS
Last month on WAJR, Superintendent Devono claimed that he had no idea what “innuendo” WV American Federation of Teachers President Judy Hale was inferring by pointing out that Monongalia County has the second worst student-teacher ratio of all the counties in West Virginia. Of course, Superintendent Devono is being dishonest. He knows what the innuendo is in President Hale’s remarks. Everyone with even a minimal knowledge of issues in education knows what to infer by Hale’s remarks, which is why she did not need to elaborate. It is obvious and widely known that high student-teacher ratios are odious and anti-educational, creating difficult conditions for teachers and students, for teaching and learning.
It is also obvious that in WVU’s home county, Monongalia, which is easily one of the counties in West Virginia with the most advantages, economic, social, and cultural, it is pathetic and disgraceful that the county school system run by Superintendent Devono has the second worst student-teacher ratio in the state – making everyone’s learning and working conditions that much harder. And Mon Schools administrators and board members pretend to wonder why the teachers organizations constantly object to the lousy job the administration and board is doing.
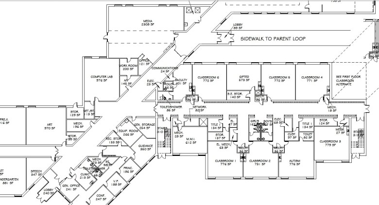
It is Monongalia County Schools’ callous and evidently uncaring administration that is also responsible for the new windowless, closet-sized spaces in the brand spanking new Eastwood Elementary that will serve as specialist teaching rooms. The unfortunate children and teachers will be put away there in these new “green” school bunkers, schooled without daylight and working all day long in windowless closets. Great job, Superintendent and Board of Education. You really win the prize.
A sample of salaries and recent raises of some Monongalia County Board of Education Central Office Administration and Personnel – those who do not work directly with students:
BOE Employee– Salary — Raise last year
Frank Devono — $152,000 — $6000
Becky Mattern — $119,975 — $12,710
Donna Talerico –$119,975 — $12,710
Tiffany Barnett — $74,022 — $5331
Sandy Devault — $92,571 — $5332
Louis Lhad — $94,090 — $4564
Nancy Napolillo — $91,038 — $5333
Irv Schuetzner — $85,671 — $4564
Rick Williams — $72,765 — $4029
Janet Ackerman — $54,950 — $2071
Paula Janis — $62,765 — $2855
Dan McGinnis — $81,071 — $5332
Terry Hawkins — $119,975 — $12,710
Beth Harvey — $46,996 — $2071
These 14 administrators and central office personnel received $85,612 in pay raises last year.
And now the plan is to hire another administrator at $85,000.
Eastwood Elementary Floor Plan:


March 11, 2013 at 3:05 am
The Mon. BOE allows transfers until classrooms are bursting at the seams in some schools! They even pay overages to teachers who are past their limits in class size! The BOE answer is: Hire more academic coaching assistants! These people have no classrooms of their own and sit and plan and ???? all day while the REAL classroom teachers deal w/real life problems, overcrowded classrooms, too many duties, too many clerical things to do, too much “teach to the test” responsibilities, etc.! if only the public knew about this waste of taxpayer money on academic coaches!