BOE DESCENDS TO THE SEWAGE OF THE MINES
It has very recently come to our attention that the Eastwood school grounds are to include an additional 2.5 acres of a portion of an adjacent trailer park with 20 trailers on it, as yet to be purchased.
This is an intended acquisition of Eastwood school grounds that has never been publicly discussed, to our knowledge, let alone approved by any agency. We discovered this information subsequent to inspecting the Mon Schools link to the Eastwood architects’ website (Williamson Shriver), wherein one finds a “Report of Geophysical Study” by Triad Engineering claiming that the trailer park portion already “has been purchased [by Mon Schools] to accommodate the scope of the [Eastwood] project.” It has not been purchased. Further, the Eastwood architect (Williamson Shriver) notes in the February “Design Development Educational Specification” that the Eastwood site “tract” consists of 11.3 acres, well above the 8.85 acres purchased from WVU and previously known to the public. Thus, Mon Schools continues to operate very quietly with minimal public awareness, let alone involvement, and continues schematically designing part of the State SBA-funded facility on land that Mon Schools does not own. The Petitioner knows of no documentation expressing intent to either sell or purchase the extra acreage, and yet the schematic design wholly encompasses it (see below). Again, such procedure is forbidden by State SBA contract, Section 8.
More expense upon more expense: the Eastwood site design shows a parking lot, a school drive, and a “play field” superimposed over the current trailer park section, and the architect has spoken repeatedly of putting the geothermal well pipes for the school building under the playground. Triad Engineering states that this ground too will need to be mine-mitigated, though no bore samples were taken of this portion, unlike on the purchased site. To our knowledge, Mon Schools and Triad have not adjusted (up) for public knowledge the cost of mine mitigating this extra portion of land containing the geothermal well. [UPDATE: THE ACTUAL COST OF THE NEW SCHOOL PROJECT NOW LOOKS TO BE ABOUT $21 MILLION.]
Additional violation: no archaeological study has been done of this additional land, or even of all the previously acquired Eastwood land. The archaeological study that was undertaken encompassed only “7.16” acres, rather than the 8.85 acres of the purchased site, let alone the 11.3 acres of the schematically designed site. While, according to the archaeological study, “Systematic survey did not discover evidence of archaeological sites or historic structures or buildings within the boundaries of the project area” the study adds that “Areas outside the direct area of potential effect were not examined for sites or other types of cultural resources.” This neglected area of study includes the entire 2.5 acres of the trailer park yet to be purchased, and 1.7 acres of the purchased portion of the school grounds.
Of further concern is that, apparently, as far as is known, the septic “system” for the trailer park is the mine void a scant few dozen feet below the trailer park and the school grounds both. So it is that apparently part, perhaps a large part, of the Eastwood school grounds contains a sewage dump. No explanation has been given, to the extent that it can ever be known, where that sewage would go when the mines get filled to provide support for the building and geothermal pipes. Will the sewage ooze out onto the backside of the school grounds (where the proposed nature trail would be), school grounds that slope down to and below the level of the mines and the mine portals? Triad Engineering reports:
“…a 5 foot by 12 foot by 6 foot septic tank was installed on the Site Property (trailer park portion) in 1949. The location of the septic system is unknown. A 10,800 gallon concrete septic tank with filter system was installed on the southern portion of the Site Property; however, it is unknown when this septic system was installed. The septic systems may be connected to an underground mine located approximately 10 to 30 feet below the ground surface.”
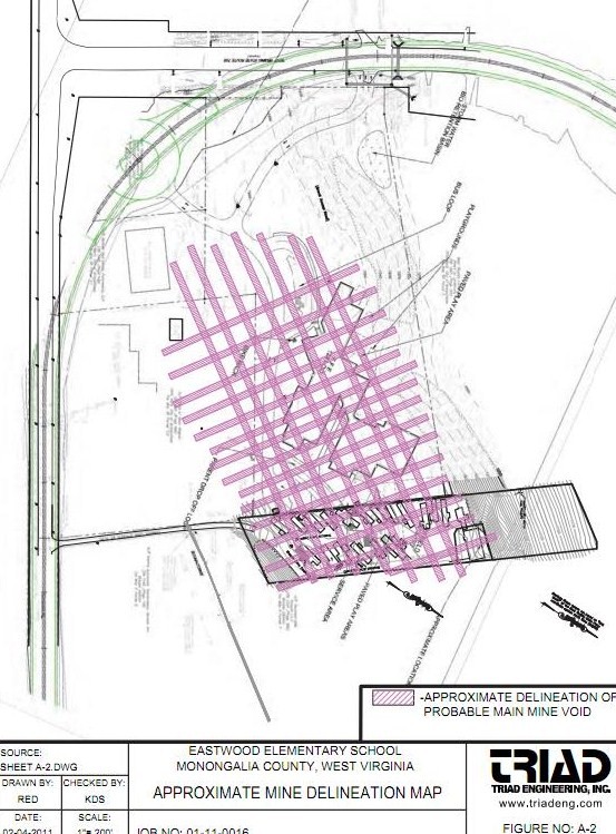
Triad Engineering shows that the mines all interconnect (figure A-2) (see below) under virtually the entire Eastwood grounds. Once the mine voids are filled, the water and sewage displaced, would any nature trail then traverse a sewage seep? What test has yet been conducted for sewage seep? Apparently the new school would be heated and cooled by the temperature of the trailer park sewage radiating through the geothermal pipes into the classrooms. Now that’s what we call brownfield development!
Former Mon Schools President Nancy Walker had said that a new school at the 705/119 intersection site would allow the children from the trailer park to walk to school, as was repeatedly reported, but now well over half, about two thirds, of those trailers are going to be entirely displaced, so that ever fewer if any children at all would be able to walk to the brand new school on the sewage dump.
The Triad environmental assessment of the intended but unapproved trailer park portion of the Eastwood site notes additionally:
The following information was based on records provided by the Monongalia Health Department. The Mileground Mobile Home Park had a permit (Permit #3109055) with the Monongalia County Health Department which expired in December 2009. According to inspections from 2004 to 2009, there were several violations concerning solid waste, fire protection/safety hazard, and skirting. Large amounts of residential debris such as car motors, tires, old batteries, and general garbage were noted to be located in several lots in the Mileground Mobile Home Park…”
Despite Triad’s noting the presence of hazardous materials such as “batteries,” no soil sampling was conducted on the trailer park portion of the intended school grounds, not even where the “play field” is to be.
Siting school grounds and a “play field” scant feet above a sewage dump is highly hazardous. The intended site must be banned. Since nothing can be known to have prevented sewage from spreading throughout the mines underlying virtually the entire school site, especially a site that is to be disturbed by mine-fill and heavy construction, and geothermal pipes, the entire site must be banned in face of such hazard.
Siting a school over an apparent sewage dump by polluted and dangerous highways?
Green, it ain’t.
Ethical, it ain’t.
Legal? How?
Child appropriate? Not in any sense.
Once again, let it be noted: the Eastwood site, both as purchased and as fully intended, is a perfect storm of health and safety hazards and legal violations. These hazards and violations threaten in the short term and into perpetuity the ability of Mon Schools and state agencies to provide for both a “thorough and efficient system of…schools,” per state Constitution, not least given the many site pitfalls, dangers and damages, extra expenses, and the inherent potential immense civil liability risks. These factors render the site indefensible per state Code, state Constitution, and state Policy, at a minimum, and must bar the entire location from any further development and possibility of school facility siting.


February 26, 2011 at 3:34 am
Hey, BOE, when your friends at WVU run out of worthless land that you have been helping them unload, I’ve got some polluted swamp land I can sell you.
March 15, 2011 at 4:12 am
Just wanted to say thank you for your support and to give mine